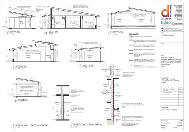
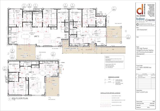
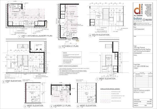
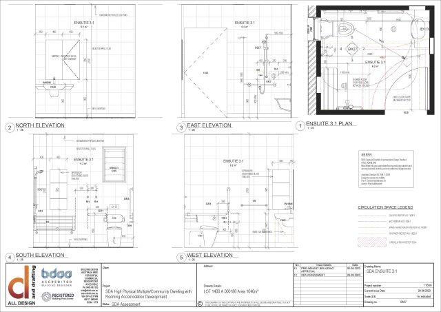
SDA High Physical Multiple/Community Dwelling with Rooming Accommodation Development.
Building Approval and Construction example set of drawings.




























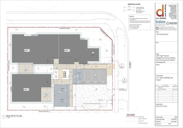
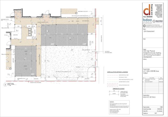
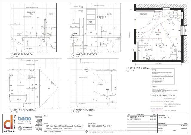
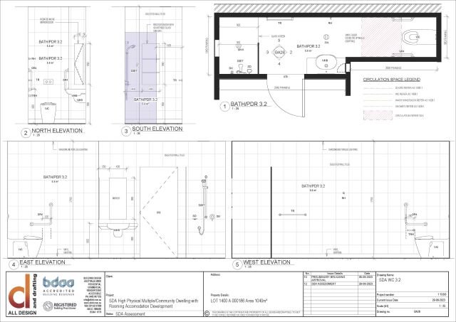
SDA High Physical Multiple/Community Dwelling with Rooming Accommodation Development.
Building Approval and Construction example set of drawings.



























